Complexe Flora

Nouveau projet, nouvelle approche et nouveaux horizons.
Complexe FLORA est un projet de haut standing, créé pour usage commercial et habitat, ce complexe va bénéficier des dernières technologies de bâtiment et d'équipement modernes.

ARCHITECTURE & DESIGN

DÉCOUVREZ NOS PLANS


Commercial : M1
Typologie : Commercial
Niveau : RDC
Surface : 158.6 m2
Etat : Non disponible

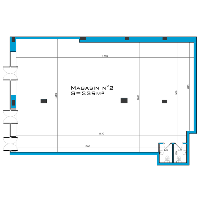
Commercial : M2
Typologie : Commercial
Niveau : RDC
Surface : 239 m2
Etat : Non disponible

Appartement : D1
Typologie : Triplexe
Niveau : RDC
Surface : - m2
Etat : Non disponible

Appartement : A1.1
Typologie : S+2
Niveau : 1er étage
Surface : 128.7 m2
Etat : Disponible

Appartement : A1.2
Typologie : S+2
Niveau : 1er étage
Surface : 138.5 m2
Etat : Disponible

Appartement : A1.3
Typologie : S+3
Niveau : 1er étage
Surface : 174.1 m2
Etat : Non disponible

Appartement : A1.4
Typologie : S+3
Niveau : 1er étage
Surface : 161.2 m2
Etat : Disponible

Appartement : A2.1
Typologie : S+2
Niveau : 2eme étage
Surface : 128.7 m2
Etat : Disponible

Appartement : A2.2
Typologie : S+2
Niveau : 2eme étage
Surface : 144.6 m2
Etat : Disponible

Appartement : A2.3
Typologie : S+3
Niveau : 2eme étage
Surface : 175.5 m2
Etat : Disponible

Appartement : A2.4
Typologie : S+2
Niveau : 2eme étage
Surface : 128.7 m2
Etat : Disponible

Appartement : A2.5
Typologie : S+2
Niveau : 2eme étage
Surface : 117 m2
Etat : Disponible

COORDONNÉES DU PROJET


NEWSLETTER
Inscrivez-vous pour recevoir notre newsletter
CENTRE MEDIATIQUE

Un savoir faire particulier

toute l'actualite
  

NOUS SUIVRE

Ne nous quittez plus.
Suivez-nous sur les réseaux sociaux
© Les Artisans, Tout droits réservés